Burg. IJsebaertstraat + 27
Burg. IJsebaertstraat  3
Sint Jansteen
€ 199.000  K.K.
Perceelsgrootte: 252 m2 Slaapkamers: 3
Garage: Ja Gebruiksoppervlakte wonen: 79 m2
Bouwjaar: 1960
  • Starterskans!
  • Ruime oprit & garage
  • Hobby/bergruimte
  • Potentie & mogelijkheden
  • Rustige locatie
  • Energielabel F

Korte omschrijving

KANS VOOR STARTERS, POTENTIE OP TOPLOCATIE!
De vraagprijs betreft een bieden vanaf prijs.

Starters opgelet: dit is je kans om jouw droomstart in Sint Jansteen te maken! Burgemeester IJsebaertstraat 3 is een 2-onder-1-kapwoning, gelegen in een rustige en groene straat waar je volop privacy hebt en toch alles binnen handbereik ligt. Het pand biedt een solide basis met volop potentie om helemaal naar eigen smaak te moderniseren en in te richten.

Dankzij de ruime oprit, eigen garage en flinke bergschuur/hobbyruimte is er voldoende plek voor auto’s, fietsen, tuinspullen of creatieve hobby’s. De woning heeft een praktische indeling met een woonkeuken, doorzonwoonkamer en bijkeuken op de begane grond, zodat je direct alle woonfuncties op één niveau hebt. Op de verdieping tref je een overloop, drie slaapkamers en een badkamer. Bovendien is er een handige vliering voor extra opslag.

Sint Jansteen is een sfeervol dorp met een prettige mix van rust en bereikbaarheid. Alle dagelijkse voorzieningen, zoals winkels, scholen en sportfaciliteiten, vind je op korte afstand. De Belgische grens is binnen handbereik en Hulst ligt slechts enkele minuten verderop. Voor starters is dit een unieke kans: een woning die alles biedt om er je eigen plekje van te maken, op een toplocatie.

Rustig wonen met alles binnen handbereik, dat is hier gegarandeerd.
Kom langs en ervaar zelf de ruimte, mogelijkheden en toplocatie! Wij staan altijd voor je klaar.

Begane grond

Je komt binnen in de entreehal met toegang tot het toilet, de meterkast, trapopgang en een handige trapkast. Vanuit hier loop je door naar de woonkeuken. Deze is eenvoudig uitgevoerd, maar biedt volop ruimte om hier een fijne leefkeuken van te maken. Vanuit de keuken bereik je de doorzon woonkamer. Dankzij de grote raampartijen valt hier veel licht naar binnen en zorgt de gaskachel voor extra sfeer en warmte. Dit is zo’n woonkamer waar je meteen voelt: hier zit potentie.

Via de keuken ga je naar de bijkeuken, met de opstelplaats van de cv-installatie (Remeha 2011) en de witgoedaansluitingen. Vanuit hier loop je zo de achtertuin in, richting je garage en hobbyschuur.

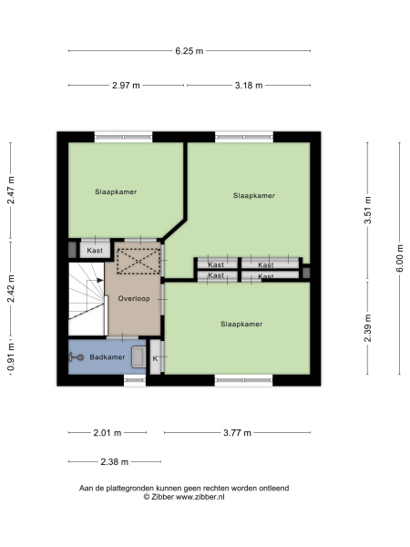
Eerste verdieping

Op de verdieping kom je uit op een ruime overloop die toegang geeft tot drie slaapkamers. Fijne, functionele ruimtes die zich uitstekend lenen om opnieuw in te delen of te moderniseren. De badkamer is voorzien van een inloopdouche en wastafel. Ook hier geldt: de basis is er, de afwerking mag helemaal naar eigen smaak.

Tweede verdieping

Via een vliering is er extra bergruimte aanwezig, ideaal voor seizoensspullen en alles wat je niet dagelijks nodig hebt.

Bijzonderheden

De woning is nagenoeg volledig voorzien van rolluiken. De woning word volledig verwarmd doormiddel van radiatoren. De ruime oprit, garage en bergschuur/hobbyruimte maken dit een praktisch en veelzijdige woning. De tuin biedt volop ruimte voor een loungehoek, moestuin of speelplek. Deze woning is ideaal voor starters die graag een woning willen met potentie, een fijne locatie en ruimte voor zowel wonen als hobby. Hier kan je een echt thuis creëren dat volledig bij jouw levensstijl past.

Grijp deze kans en maak van deze woning jouw eerste stap op de woningmarkt!

Meer informatie

Wilt u meer informatie ontvangen met betrekking tot deze woning? Dat kan. Via het tabblad 'Brochure' kunt u de complete brochure direct aanvragen en downloaden.

Gelieve onderstaand formulier in te vullen om de brochure te downloaden.

* Verplichte velden

REAGEER DIRECT OP DEZE WONING

Contactgegevens

 

+31 (0) 114 - 68 63 77

 

Hooglandsedijk 12
4589 RW Ossenisse

Privacyverklaring

KvK 94040303
BTWnr NL030221468B01