Bossestraat + 27
Bossestraat  36 a
Vogelwaarde
€ 319.000  K.K.
Perceelsgrootte: 285 m2 Slaapkamers: 4
Garage: Ja Gebruiksoppervlakte wonen: 120 m2
Bouwjaar: 1975
  • Vier slaapkamers
  • Dakkapel tweede verdieping
  • Luxe overkapping
  • Garage mét werkplaats
  • Vrij uitzicht op bos
  • Energielabel C

Korte omschrijving

BUITENRUIMTE, RUIME OPRIT & VIER SLAAPKAMERS, HEERLIJKE GEZINSWONING!

Aan de Bossestraat 36a in Vogelwaarde staat deze solide geschakelde 2-onder-1-kapwoning. Met vrij uitzicht richting het bos woon je hier op een locatie die steeds zeldzamer wordt. Vogelwaarde biedt een prettige woonomgeving met natuur en verenigingsleven, terwijl Hulst, voorzieningen en uitvalswegen snel bereikbaar zijn. 

Deze woning scoort hoog op indeling, buitenruimte en gebruiksgemak. Met vier volwaardige slaapkamers, een logische en prettige indeling is dit een woning waar je zo in kunt. Binnen tref je moderne elementen zoals een vernieuwde badkamer en een dakkapel op de tweede verdieping, die zorgt voor extra ruimte.

Buiten wordt het pas echt interessant. De keurig onderhouden tuin met luxe overkapping voorzien van elektra is een verlengstuk van de woning. Hier geniet je elk seizoen van het buitenleven, met volop mogelijkheden voor een loungehoek of buitenkeuken. De aangebouwde berging, toegang tot de garage met werkplaats en parkeerruimte voor twee auto's op eigen terrein maken het plaatje compleet.

Kom kijken en ervaar zelf de ruimte, het uitzicht en de tuin. Wij maken tijd voor jou, 7 dagen per week, ook ’s avonds.

 

Begane grond

Je betreedt de woning via de hal met meterkast, praktische bergkast, vaste trap naar de eerste verdieping en het toilet. Het toilet is voorzien van een staand toilet en fonteintje. De woonkamer is ruim opgezet en prettig licht, voorzien van rolluiken. Aansluitend vind je de open keuken, uitgerust met diverse inbouwapparatuur zoals een 4-pits gaskookplaat, oven, koelkast, afzuigkap en vaatwasser. Vanuit de keuken heb je direct toegang tot de tuin, praktisch en fijn voor het dagelijks gebruik.

Eerste verdieping

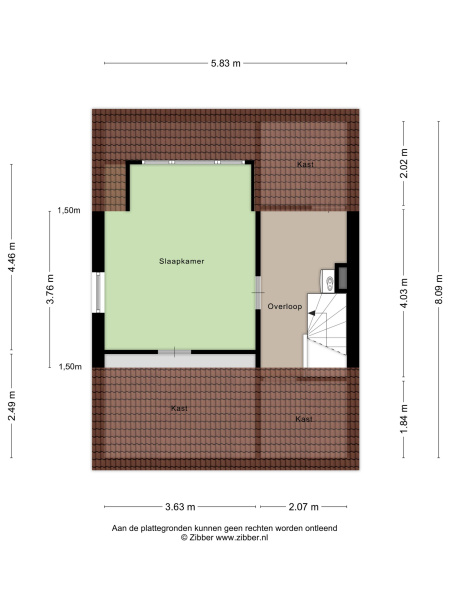
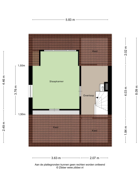
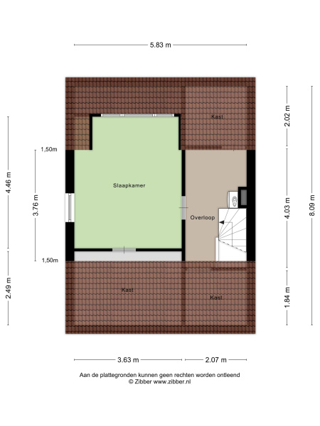
De overloop biedt toegang tot drie slaapkamers, allemaal voorzien van rolluiken en keurig van formaat. Een slaapkamer beschikt over een vaste inbouwkast. Daarnaast vind je hier de nieuwe moderne badkamer (2023), strak uitgevoerd met een inloopdouche, hangend toilet en wastafelmeubel. Op de overloop is tevens een bergkast aanwezig met aansluitingen voor wasmachine en droger. Alles functioneel, overzichtelijk en klaar voor gebruik.

Tweede verdieping

Via een vaste trap bereik je de tweede verdieping met een ruime vierde slaapkamer. Achter de knieschotten is volop bergruimte aanwezig. Op de overloop bevindt zich de opstelplaats van de HR-combiketel (Remeha 2004). Dankzij de dakkapel is dit een volwaardige woonruimte met veel licht. Deze verdieping leent zich perfect als slaapkamer, thuiswerkplek of hobbyruimte.

Bijzonderheden

De tuin is hier geen bijzaak, maar een volwaardig onderdeel van het wooncomfort. De achtertuin is keurig onderhouden, overzichtelijk aangelegd en biedt volop ruimte om te genieten van het buitenleven. Er bevindt zich een luxe overkapping, voorzien van elektra en de mogelijkheid voor een buitenkeuken.

Aan de gevel, naast de achterdeur, is een buitenkraantje aanwezig, praktisch voor tuinonderhoud. Onder de overkapping bevindt zich een aangebouwde bergschuur, perfect voor opslag van zomerspullen.

Via de tuin heb je toegang tot de aangebouwde garage met werkplaats, een absolute plus voor de klusser of hobbyist. Parkeren kan royaal op eigen terrein, met plaats voor meerdere auto’s!

Meer informatie

Wilt u meer informatie ontvangen met betrekking tot deze woning? Dat kan. Via het tabblad 'Brochure' kunt u de complete brochure direct aanvragen en downloaden.

Gelieve onderstaand formulier in te vullen om de brochure te downloaden.

* Verplichte velden

REAGEER DIRECT OP DEZE WONING

Contactgegevens

 

+31 (0) 114 - 68 63 77

 

Hooglandsedijk 12
4589 RW Ossenisse

Privacyverklaring

KvK 94040303
BTWnr NL030221468B01