| Perceelsgrootte: 296 m2 | Slaapkamers: 4 |
| Garage: Ja | Gebruiksoppervlakte wonen: 103 m2 |
| Bouwjaar: 2017 |
Jong, modern en instapklaar: jouw droomwoning in Kloosterzande!
Aan de Karel Doormanstraat 25 in Kloosterzande staat deze jonge, instapklare twee-onder-een-kapwoning met garage, bergschuur en een overkapping. Uiteraard is met alle wooneisen rekening gehouden en is gewerkt met eersteklas materialen. Hier woon je ruim, energiezuinig en heerlijk rustig, met vrij uitzicht aan de voorzijde en een verzorgde tuin waar het in elk seizoen genieten is.
De woning verkeert in uitmuntende staat, heeft veel leef- en woonruimte en is door de 12 zonnepanelen duurzaam. Er zijn drie woonlagen en mogelijkheid tot vier of vijf in te richten slaapkamers, een gebruiksoppervlakte van 130m2! De oprit met garage en de verzorgde aangelegde tuin maken het plaatje compleet. Een geweldige gezinswoning! De woning is keurig onderhouden, tot in de puntjes afgewerkt en klaar voor nieuwe bewoners die houden van ruimte en goede kwaliteit.
Kloosterzande is een levendig dorp met winkels, scholen, horeca en sportvoorzieningen binnen handbereik. Bovendien ben je in tien minuten in Hulst en in een kwartiertje over de grens in België.
Kijk je ogen uit, wij doen de rest! Wij zijn er 7 dagen per week voor jou, ontdek hoe het voelt om hier te wonen.
Wanneer je binnenstapt, kom je in de ruime hal met toegang tot het toilet en de meterkast. Vanuit hier loop je de lichte, royale woonkamer in, een fijne leefruimte waar de grote schuifpui zorgt voor veel licht en een mooi uitzicht op de tuin. Het voorst raam is voorzien van een screen. Onder de trap is een handige bergkast weggewerkt en via de woonkamer bereik je de vaste trap naar de verdieping.
De woonkamer loopt over in de open keuken. Hier kook je met plezier: uitgerust met een elektrische kookplaat, afzuigkap, oven, koelkast en vaatwasser is deze keuken helemaal compleet. Aansluitend vind je de praktische bijkeuken met witgoedaansluiting en toegang tot de garage.
Warm, licht en praktisch ingedeeld, precies wat je zoekt in een gezinswoning!
De eerste verdieping is voorzien een ruime overloop die toegang biedt tot maar liefst drie ruime slaapkamers en de moderne badkamer. De kamers zijn stuk voor stuk netjes afgewerkt, licht en praktisch ingedeeld. De strakke vloer loopt drempelloos door over de hele verdieping en zorgt voor een stijlvolle uitstraling. Grote ramen zorgen voor een fijne lichtinval en geven de kamers een aangename, open sfeer.
De badkamer is keurig: modern, fris en voorzien van alle gemakken. Hier vind je een ruime inloopdouche, een ligbad om heerlijk te ontspannen en een hangtoilet. De betegeling en de afwerking zijn met zorg gekozen, waardoor de ruimte een luxe uitstraling heeft en tegelijkertijd praktisch is in gebruik. Dit is zo’n badkamer waar je elke ochtend met plezier de dag begint en ’s avonds volledig tot rust komt.
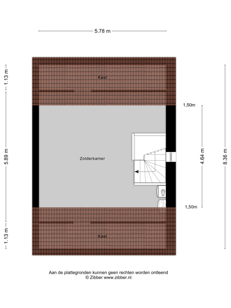
Via de vaste trap bereik je de tweede verdieping (van ca. 27 m2!), een ontzettend ruime en veelzijdige verdieping. Hier vind je de opstelplaats van de CV-installatie (Intergas 2018) en de WTW-installatie, maar vooral veel extra leefruimte. Dankzij de enorme ruimte kun je hier eenvoudig een vierde of zelfs vijfde slaapkamer, een werkkamer of hobbyruimte creëren. Onder de schuine wanden is bovendien praktische bergruimte aanwezig, ideaal voor koffers, dozen en seizoensspullen.
Ook buiten is het volop genieten. De fraai aangelegde tuin is tot in de puntjes verzorgd en voorzien van een bergschuur en een prachtige overkapping: een heerlijke plek om lange zomeravonden door te brengen. Er is een grondwaterbron (7,5 meter diep) aanwezig voor het bewateren van de tuin, en dankzij de achterom is alles makkelijk bereikbaar. Een fijne, onderhoudsarme tuin waar je zó kunt intrekken!
De woning is uitstekend onderhouden en instapklaar. Voorzien van kunststof kozijnen met HR++ beglazing, minimaal onderhoud. De volledige woning wordt verwarmd doormiddel van van radiatoren voor een gelijkmatige verwarming. Buiten beschik je over een eigen oprit met een garage, alles wat je nodig hebt voor comfortabel wonen!
Wilt u meer informatie ontvangen met betrekking tot deze woning? Dat kan. Via het tabblad 'Brochure' kunt u de complete brochure direct aanvragen en downloaden.
Gelieve onderstaand formulier in te vullen om de brochure te downloaden.