| Perceelsgrootte: 196 m2 | Slaapkamers: 4 |
| Garage: Ja | Gebruiksoppervlakte wonen: 109 m2 |
| Bouwjaar: 1993 |
Hier wil je wonen! Ruimte, instapklaar en een toplocatie.
Aan de Bellinistraat 12 in Hulst staat deze instapklare en complete 2-onder-1-kapwoning op een rustige, groene en kindvriendelijke woonlocatie. Hier woon je heerlijk rustig, terwijl werkelijk alle voorzieningen binnen handbereik liggen. Scholen, speeltuintjes, winkels, horeca, het historische centrum van Hulst en openbaar vervoer bevinden zich op korte afstand. Dit is zo’n plek waar je thuiskomt na een drukke dag en direct ontspant.
De woning is uitstekend onderhouden, modern afgewerkt en helemaal klaar voor nieuwe bewoners. Dankzij de kunststof kozijnen en deuren, rolluiken rondom, 10 zonnepanelen (2023) en twee Daikin airco’s (2020) voor koelen en verwarmen woon je hier comfortabel en energiezuinig. De ruime oprit biedt plaats aan twee auto’s, maar is ook ideaal voor een grote werkbus. Alles klopt hier: ruimte, licht, ligging en afwerking.
Twijfelen hoeft niet. Kom kijken, voel de ruimte! Wanneer het jou uitkomt, staan wij voor je klaar. Ook ’s avonds en in het weekend. Dit is jouw moment, wij regelen de rest.
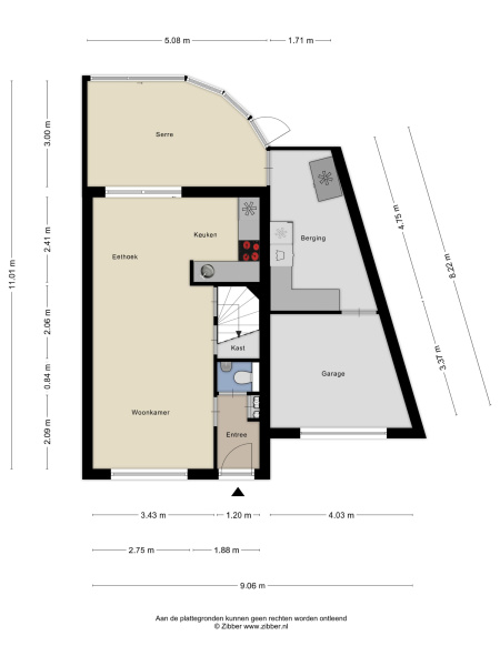
Je komt binnen in een nette entreehal met een vernieuwde meterkast (2023), een modern hangtoilet met fonteintje en toegang tot de woonkamer. De woonkamer is heerlijk licht en keurig afgewerkt, voorzien van airco voor zowel verwarmen als koelen en biedt toegang tot de trapkast en de trap naar de verdieping. Aansluitend ligt de open keuken, waarvan in 2022 de inbouwapparatuur is vernieuwd en van alle gemakken is voorzien, zoals een inductiekookplaat, afzuigkap, koelkast, vaatwasser en oven.
Een absolute meerwaarde is de aangebouwde, verwarmde serre/tuinkamer. Deze ruimte verbindt binnen en buiten perfect en is ideaal als extra lounge, speelkamer of eetruimte. Via de schuifpui geniet je hier het hele jaar door van het buitengevoel. Vanuit de serre bereik je de bijkeuken met extra keukenblok, oven en witgoedaansluitingen en heb je directe toegang tot de garage met elektrische garagedeur.
Op de eerste verdieping kom je uit op de overloop, die eveneens is voorzien van airco waarmee je kunt koelen en verwarmen. Vanaf hier heb je toegang tot drie slaapkamers: twee ruime slaapkamers en een derde, iets kleinere kamer, perfect als kinder-, werk- of kleedkamer. Alle slaapkamers zijn voorzien van rolluiken. De badkamer is ruim opgezet en uitgerust met een ligbad, toilet en wastafelmeubel.
Via een vaste trap bereik je de tweede verdieping. Hier bevindt zich een volwaardige vierde slaapkamer, ideaal voor een tiener, logees of een thuiskantoor. Daarnaast is er veel praktische bergruimte en vind je hier de opstelplaats van de CV-installatie (Nefit, 2012).
De tuin is onderhoudsvrij aangelegd, zonnig en praktisch. Achterin staat een bergschuur voorzien van elektra en kunststof deur met zelfs een eigen keukenblok en oven, ideaal voor hobbyisten. Via een poort aan de achterzijde is de tuin ook bereikbaar. Aan de voorzijde tref je een verzorgde voortuin en de royale oprit die deze woning echt onderscheidt.
Deze woning is volledig voorzien van kunststof kozijnen en deuren, rolluiken en radiatoren en kan grotendeels worden verwarmd én gekoeld met de aanwezige airco’s. De combinatie van zonnepanelen, goede isolatie en moderne installaties zorgt voor toekomstgericht wonen. De ligging is rustig en verkeersarm maar toch dichtbij alles wat Hulst zo aantrekkelijk maakt. Een instapklare gezinswoning waar je zo in kunt, met ruimte binnen en buiten en een ligging die elke dag weer prettig aanvoelt.